物件最新情報は級恷O河カントリーホームページのトップページから閲覧してください。

有限会社 奥三河カントリー                      2025.09(420-6)
可児市広見  売家 物件番号 8354
 総額 980万円  坪単価 15.94万円
買物病院等に利便性の良い分譲地
 
物件所在地 可児市広見  取引形態  仲介
 交通  東海環状自動車道「可児御嵩IC」より7.3km。
JR太多線「可児駅」名鉄広見線「新可児駅」より1.8km。
地目 宅地 地域区分
(用途地域) 
非線引区域
接道 無指定地域 
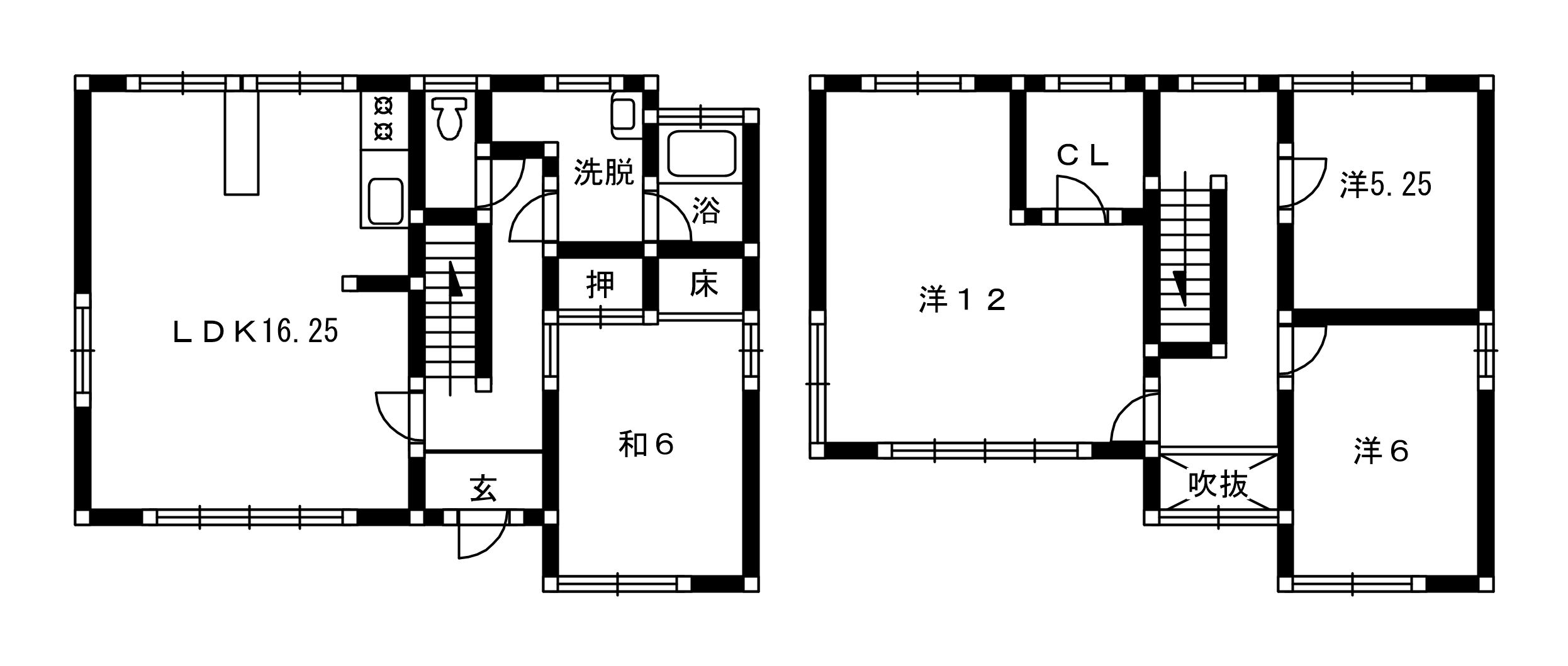
公簿面積 203.18 u 建物面積  104.83 u
61.46 坪 31.71 坪
建物構造 木造鋼板葺2階建   築年  1983年 
建物間取 4LDK  空家 
電気 引込済  上水道  引込済 
 電話    下水道  下水道 
物件概要 可児市の中部、可児川の支流久々利川沿いにほど近い位置に開発分譲された分譲地の一画。南側に幅6mの舗装道路に接する戸建。築年相応な状態で、入居時は軽く内装リフォームが推奨。駐車場は1台分。スーパーや駅が徒歩圏にあり、田舎過ぎず都市部過ぎずの地域をお探しの方へ。電気上下水道引込済。  
次ページ
  本サイトに掲載されている物件は、一般個人の方が所有する
不動産で、現在も所有者様が管理しています

よって、本サイトの物件情報には防犯及び個人情報保護の観点から
物件所在地番を明記していません。


本サイトの物件情報のみで現地探しを行うこと、及び
電話による地番、住所の問い合わせはご遠慮お願いいたします。

「今近くに居るから」等の急な物件所在地番、住所の問い合わせ
には対応できかねますのでご了承ください。

気になる物件がありましたら現地へ向かう前に  

物件資料請求
 
(物件番号の手入力をお願いします。物件番号は自動入力されません。)

  
をお願いいたします。


なお、メール等での物件資料提供は会員様限定サービスです。
初めてお問い合わせ頂く方や非会員のお客様への物件資料は、郵送のみでのご提供となります。

弊社で取り扱っております不動産は、弊社事務所から遠隔地である為、
急な物件案内のお申し出には対応いたしかねますのでご了承ください
「今日・明日、近くに行く予定があるから」、
「今近くに居るから」等の 急な物件案内はご遠慮させて頂いております。

とくに、建物に関しては鍵の手配が必要です。
売主様が遠方にお住まいの場合は鍵の手配に1週間程度かかりますし、
利用中の建物は所有者様のご都合もあります。
 ご案内には関係者のスケジュール調整が必要です。

物件資料がお手元に届きましたら、お客様ご自身で周辺環境や外観見学をして頂いても問題ございません。
売家の場合は、敷地内への立ち入りや居住様宅訪問は厳に慎んでください。
具体的な商談をご希望の場合は、別途対応させて頂きます。
 
有限会社 奥三河カントリー  愛知県知事(4)19115
代表 塚水雄一朗
〒484-0081 犬山市犬山字専正寺町13番地
Mail:okumikawa@inaka-tsuhan.com
営業時間 AM 10:00〜PM 6:00