物件最新情報は級恷O河カントリーホームページのトップページから閲覧してください。

有限会社 奥三河カントリー                      2025.10(421-6)
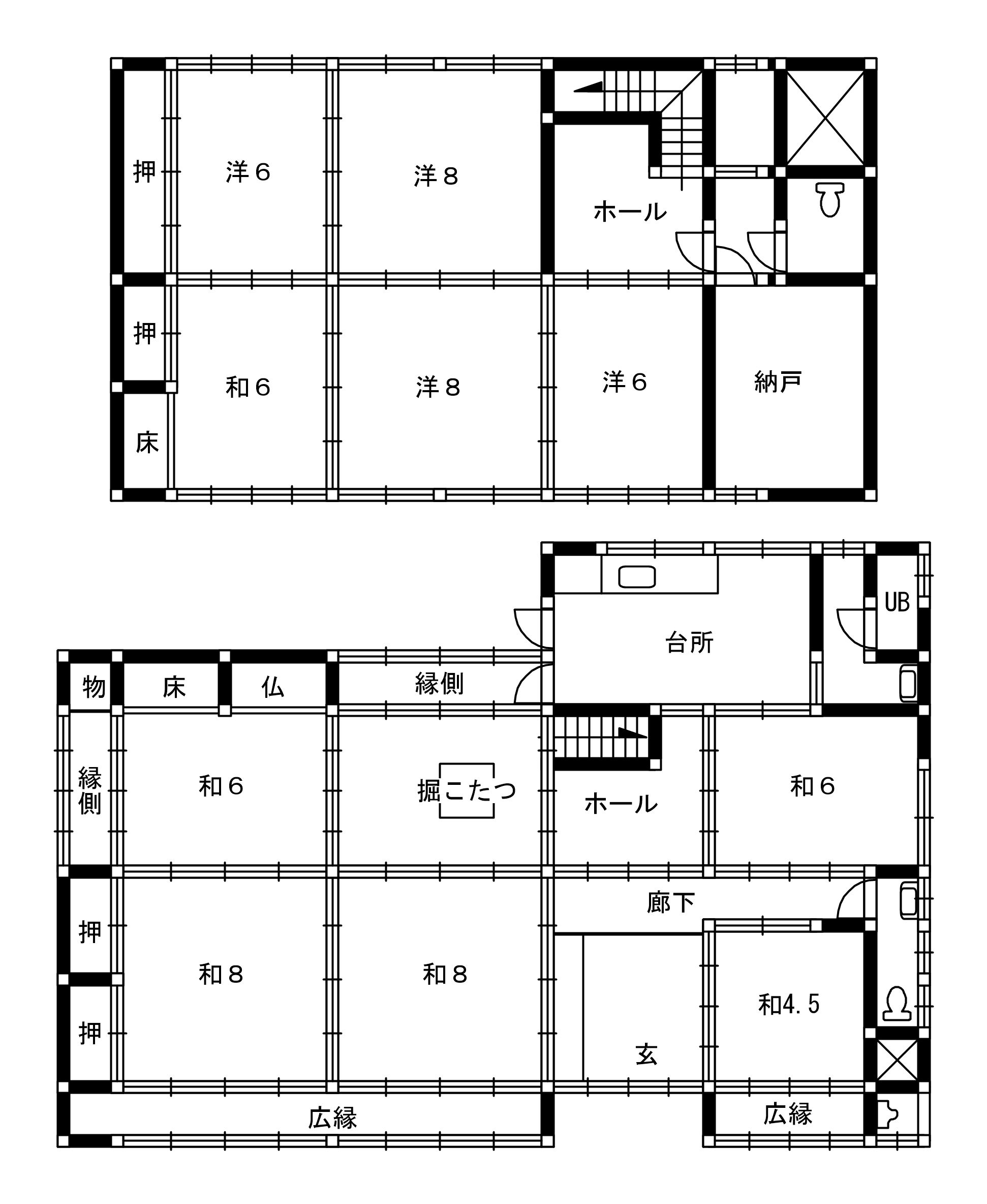
新城市作手大和田  売家 物件番号 8358
 総額 700万円  坪単価 3.43万円
巴川沿いの倉庫付き古民家
 
物件所在地 新城市作手大和田  取引形態  仲介
 交通  新東名高速道路「新城IC」より23km。
 
地目 宅地・雑種地 地域区分
(用途地域) 
都市計画区域外
接道 無指定地域 
公簿面積 674.48 u 建物面積  199.62 u
204.03 坪 60.38 坪
建物構造 木造瓦葺2階建   築年  1951年 
建物間取 11K+倉庫+蔵  空家 
電気 引込済  上水道  公営上水道引込済 
 電話    下水道  浄化槽 
物件概要 新城市の北中部、巴川添いに農地と民家が広がる中山間地域の集落の一画。護岸工事された川添いに位置する古家。家屋は築年相当だが、敷地には大型倉庫や蔵もあり車やバイクを複数所有する人や機械いじりが好きな方には良さそうな環境。川へは階段で降りれるのがチョット嬉しい。電気上水道引込済。浄化槽設置済。リバーサイドな環境を探している方に。   
次ページ
  本サイトに掲載されている物件は、一般個人の方が所有する
不動産で、現在も所有者様が管理しています

よって、本サイトの物件情報には防犯及び個人情報保護の観点から
物件所在地番を明記していません。


本サイトの物件情報のみで現地探しを行うこと、及び
電話による地番、住所の問い合わせはご遠慮お願いいたします。

「今近くに居るから」等の急な物件所在地番、住所の問い合わせ
には対応できかねますのでご了承ください。

気になる物件がありましたら現地へ向かう前に  

物件資料請求
 
(物件番号の手入力をお願いします。物件番号は自動入力されません。)

  
をお願いいたします。


なお、メール等での物件資料提供は会員様限定サービスです。
初めてお問い合わせ頂く方や非会員のお客様への物件資料は、郵送のみでのご提供となります。

弊社で取り扱っております不動産は、弊社事務所から遠隔地である為、
急な物件案内のお申し出には対応いたしかねますのでご了承ください
「今日・明日、近くに行く予定があるから」、
「今近くに居るから」等の 急な物件案内はご遠慮させて頂いております。

とくに、建物に関しては鍵の手配が必要です。
売主様が遠方にお住まいの場合は鍵の手配に1週間程度かかりますし、
利用中の建物は所有者様のご都合もあります。
 ご案内には関係者のスケジュール調整が必要です。

物件資料がお手元に届きましたら、お客様ご自身で周辺環境や外観見学をして頂いても問題ございません。
売家の場合は、敷地内への立ち入りや居住様宅訪問は厳に慎んでください。
具体的な商談をご希望の場合は、別途対応させて頂きます。
 
有限会社 奥三河カントリー  愛知県知事(6)19115
代表 塚水雄一朗
〒484-0081 犬山市犬山字専正寺町13番地

営業時間 AM 10:00〜PM 6:00